Blog : tous les conseils
Alula intérieurs

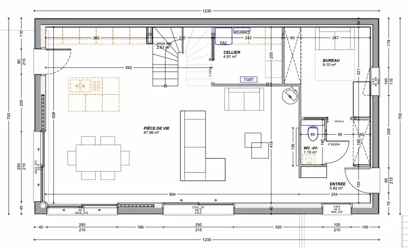
Plan technique de maison avec implantation électrique

Penser son plan électrique : les erreurs à éviter et les bons réflexes dès la conception

Conseils essentiels pour concevoir un plan électrique confortable, cohérent et évolutif dès la conception....
Rangement meuble TV toute hauteur

Aménager un petit studio : circulation, zonage et astuces d’architecte d’intérieur

Même avec peu de mètres carrés, un petit studio peut devenir fluide et confortable grâce...
Aménager sa cuisine : Cuisine en U triangle d'activité optimisé

Aménager sa cuisine : les erreurs à éviter et les choix essentiels pour une cuisine agréable au quotidien

Les clés pour un aménagement de cuisine fonctionnel, cohérent et agréable à vivre....
Petit espace aménagé pour un bébé avec lit à barreaux blanc, papier peint eucalyptus, rangements intégrés et soubassement en tasseaux dans une décoration douce et naturelle vert d'eau et pêche.

Comment optimiser un petit espace : le projet Eucalyptus, une chambre de bébé évolutive de moins de 9 m²

Découvrez comment une petite chambre de 9 m² a été transformée en un espace évolutif...
plan maison neuve optimise

Optimiser le plan de sa maison : les points essentiels à ne pas oublier quand on fait construire.

Faire construire et optimiser le plan de sa maison peut sembler complexe. Découvrez comment éviter...
entree optimisee avec espace teletravail et verriere

Comment aménager une entrée avec un bureau pour le télétravail ?​

Une entrée mal exploitée ? Découvrez comment y intégrer un bureau télétravail et des rangements...
Retour en haut