
Penser son plan électrique : les erreurs à éviter et les bons réflexes dès la conception
Conseils essentiels pour concevoir un plan électrique confortable, cohérent et évolutif dès la conception.
Construire sa maison est un projet passionnant… mais aussi semé d’embûches ! Entre les contraintes techniques, le budget, et la multitude de choix à faire, il est facile d’oublier certains détails qui feront pourtant toute la différence au quotidien.
Un intérieur bien conçu ne dépend pas seulement du style ou de la décoration : il repose sur une réflexion globale, en amont du projet. Réfléchir à l’optimisation du plan de sa maison est donc une étape clé.
Dans cet article, je vous partage les points essentiels à anticiper pour créer une maison adaptée à vos besoins d’aujourd’hui, et de demain.
Avant de parler de plans ou de décoration, il faut se poser les bonnes questions : comment allez-vous vivre dans cette maison ?
– Travaillez-vous souvent à domicile ?
– Avez-vous besoin d’un espace pour les enfants, les invités, ou pour vos loisirs ?
– Aimez-vous recevoir ?
Lister vos habitudes quotidiennes et vos priorités permettra de définir une organisation fluide, adaptée à votre réalité.
Le plan idéal, c’est celui qui correspond à votre mode de vie, pas celui qu’on voit dans les magazines.
Plutôt que de reproduire un schéma standard, pensez vos pièces selon vos habitudes de vie : une entrée pratique, une cuisine conviviale, une suite parentale isolée, un espace de télétravail lumineux…
C’est la clé d’un plan fluide et fonctionnel.
Vos besoins évolueront avec le temps : enfants qui grandissent, télétravail, nouveaux loisirs, ou même des changements familiaux.
Anticiper ces évolutions dès la conception permet de créer des espaces modulables, facilement adaptables à différents usages, et durables dans le temps, afin que votre maison reste fonctionnelle et agréable à vivre à chaque étape de votre vie.
Ce n’est pas parce qu’on construit qu’il faut faire “plus grand”.
Les contraintes de terrain et de budget imposent souvent de raisonner en qualité d’espace plutôt qu’en quantité.
Un mètre carré bien pensé vaut mieux que dix mal exploités.
Les rangements sont indispensables, mais attention à ne pas en abuser.
Privilégiez des rangements intégrés, discrets et accessibles, adaptés à vos besoins réels.
Le but : garder une maison aérée et ordonnée, sans surcharge visuelle.
Une bonne maison, c’est une maison qui se vit facilement :
les passages sont fluides, les pièces communiquent bien, et certains espaces peuvent changer de fonction (un bureau qui devient chambre d’amis, par exemple).
Ce sont ces détails qui rendent un intérieur à la fois harmonieux et pratique.
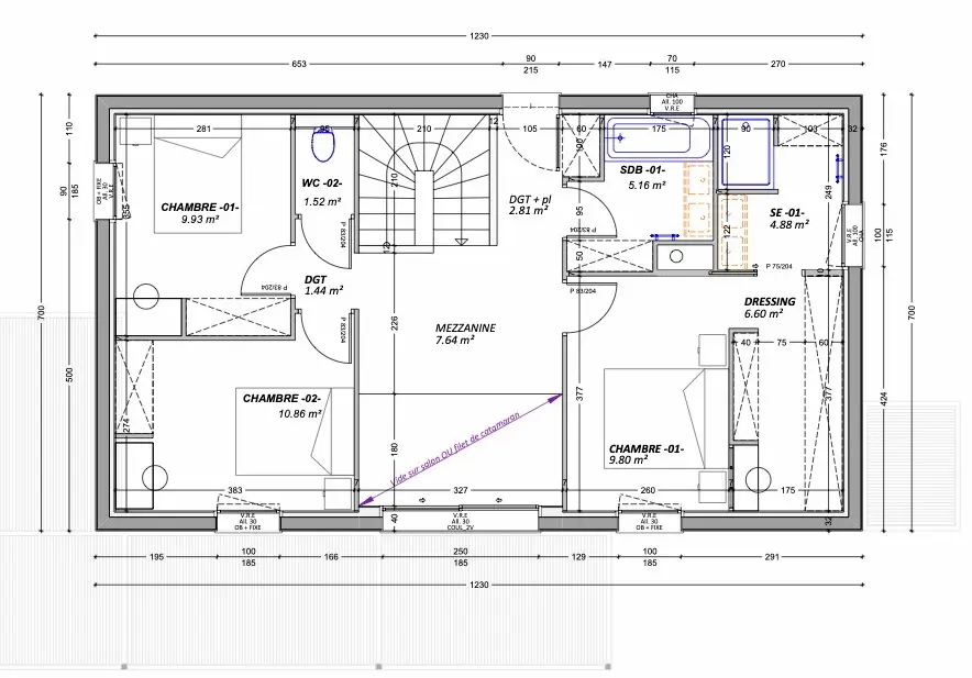
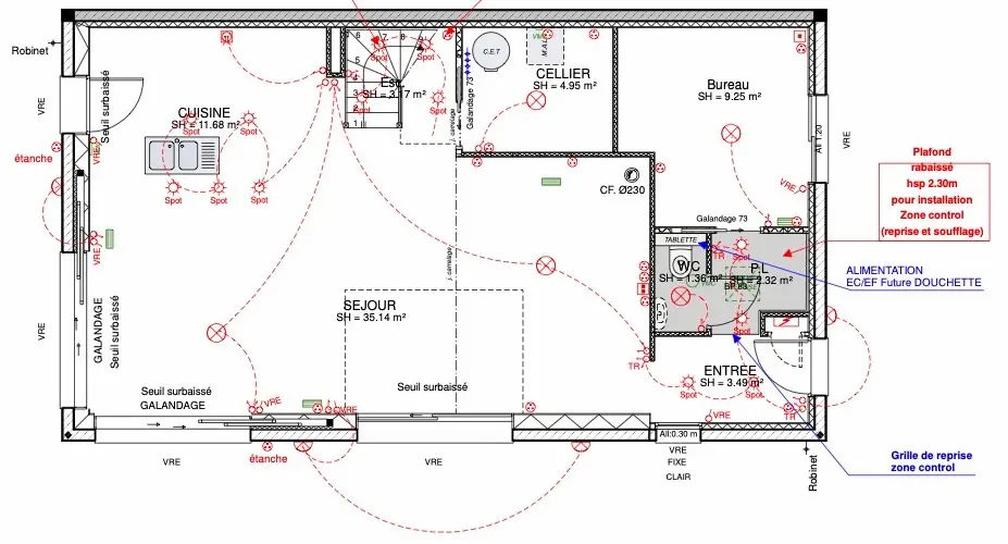
Le plan électrique fait partie des points souvent négligés… jusqu’à ce qu’il devienne un problème.
Un interrupteur mal placé, une prise manquante ou un point lumineux oublié peuvent vite gâcher la vie.
Anticipez vos usages réels : où travaillez-vous, où chargez-vous vos appareils, quelles zones souhaitez-vous mettre en lumière ?
Anticipez dès la conception les arrivées d’eau, de gaz, de ventilation et le système de chauffage.
Un gainable impliquera des gaines techniques (surtout avec un étage), tandis qu’un poêle demandera un emplacement et un conduit adaptés.
Ces choix influencent la disposition des pièces et le confort au quotidien : mieux vaut y penser avant de figer les plans.
La lumière naturelle rend une maison vivante, mais attention à l’effet inverse sur la température intérieure.
De grandes baies vitrées plein sud peuvent vite faire grimper les degrés en été.
Pensez à l’orientation et prévoyez des protections solaires pour garder un bon équilibre entre luminosité et confort thermique.
Nous avons fait appel à Margot pour nous accompagner dans l’aménagement de notre future maison, car nous avions du mal à nous projeter et à organiser l’espace de manière fonctionnelle. Dès le départ, elle s’est montrée très professionnelle et à l’écoute.
Après un entretien pour mieux comprendre notre mode de vie, elle nous a proposé plusieurs idées d’aménagement parfaitement adaptées à nos besoins. Les échanges ont été nombreux et enrichissants, et Margot a toujours été disponible, réactive et pleine de bons conseils.
Elle a ensuite modélisé notre maison en 3D, avec un design en harmonie avec nos goûts. Cela nous a beaucoup aidés à nous projeter et à envisager les travaux à venir avec beaucoup plus de sérénité.
Travailler avec Margot a été un vrai plaisir, et nous la recommandons sans hésiter !
⭐️⭐️⭐️⭐️⭐️
Réfléchir à son mode de vie, optimiser les espaces et anticiper les détails techniques : ce sont les clés d’une maison harmonieuse et fonctionnelle.
Besoin d’un accompagnement personnalisé pour votre projet de construction ?
Contactez-moi dès aujourd’hui pour en discuter ensemble.
Alors ces articles sont faits pour vous.

Conseils essentiels pour concevoir un plan électrique confortable, cohérent et évolutif dès la conception.

Même avec peu de mètres carrés, un petit studio peut devenir fluide et confortable grâce à un agencement bien pensé.

Les clés pour un aménagement de cuisine fonctionnel, cohérent et agréable à vivre.